REQUEST A TOUR If you would like to see this home without being there in person, select the "Virtual Tour" option and your agent will contact you to discuss available opportunities.
In-PersonVirtual Tour

$24
UPDATED:
Key Details
Property Type Commercial
Sub Type Office/Tech
Listing Status Active
Purchase Type For Rent
MLS Listing ID 12524516
Year Built 1999
Property Sub-Type Office/Tech
Property Description
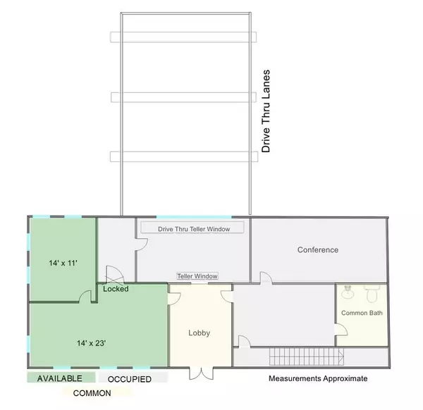
Furnished Office Space 500 SF Efficient 500 SF office suite with ample natural light, one private office and large reception/office area with 2 desks. Furniture is included. $1,000/mo. Gross including utilities. Shared lobby area with Crystal Lake Bank & Trust and common bathroom. Ideal for a small business or professional seeking a convenient, walkable location with nearby public parking. Located on Main Street, just steps from the Metra station and downtown restaurants.
Location
State IL
County Mchenry
Area Crystal Lake / Lakewood / Prairie Grove
Zoning OFFIC
Interior
Cooling Central Air
Fireplace N
Building
Dwelling Type Office/Tech
Read Less Info

© 2025 Listings courtesy of MRED as distributed by MLS GRID. All Rights Reserved.
Listed by Heather Schweitzer of Premier Commercial Realty
GET MORE INFORMATION





